Bollnäs kommun gav oss i uppdrag att utforma tre LSS-boenden, varav två på fastigheten Ren 7:45 och en på fastigheten Ren 30:1. Projektet, som präglas av småskalighet, trygghet och hemlik miljö, har jobbats fram i nära samråd med beställaren och verksamheterna.
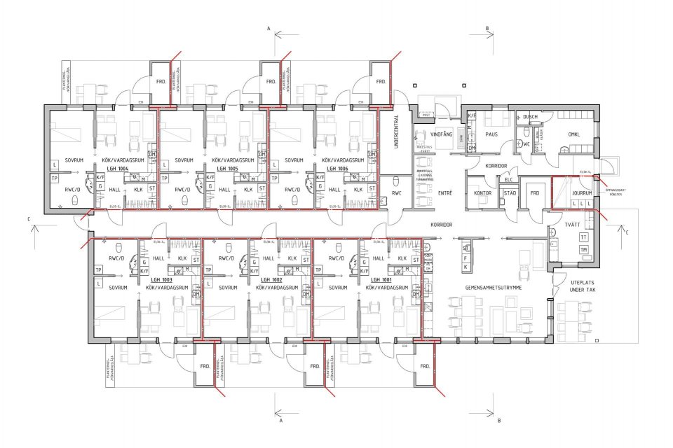
Varje LSS-boende består av sex lägenheter, med hall, kök/vardagsrum, sovrum, RWC/D och klädkammare. Gemensamhetsutrymmet utgörs av ytor för samvaro, matplatser och avdelningskök. Personalutrymmen innefattar pausrum, omklädningsrum, dusch, WC, jourrum, tvätt, städ och förråd.
Utformningen och projekteringen av utemiljön har också ingått i vårt uppdrag, där vi på de två tomterna har tagit vara på de befintliga kvalitéerna med uppvuxna träd, tillfört rumsligheter och möjlighet till vilsamma utblickar från lägenheter och uteplatser.
Uppdraget var att som generalkonsult projektera från programskedet till bygghandling för utförandeentreprenad. Utöver detta har vi ansvarat för projekteringsledning och samordning, med bland annat 3D-samordning. Projektet inleddes våren 2024, med byggstart i slutet av samma år och färdigställande planeras till hösten 2025.









